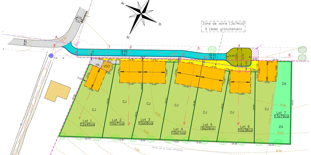
Etude et coordination d’un lotissement de sept habitations avec réalisation d’une voirie et d’une place de rebroussement, rue des Comognes à Evelette.
Etude et coordination d’un lotissement de sept habitations avec réalisation d’une voirie et d’une place de rebroussement, rue des Comognes à Evelette.