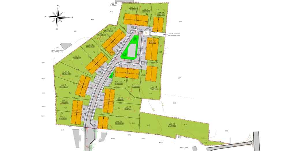
Réalisation d’un lotissement de 18 habitations.
Suivi complet du chantier de l’étude du projet à l’implantation des constructions, en passant par toute la coordination des travaux de voirie.
Réalisation d’un lotissement de 18 habitations.
Suivi complet du chantier de l’étude du projet à l’implantation des constructions, en passant par toute la coordination des travaux de voirie.