Copropriété d’un immeuble – détermination des parties privatives et parties communes – calcul des quotités attribuées à chaque lot

 

Copropriété Jamoigne Chiny
Création d'une copropriété à Jamoigne (Chiny) - immeuble de 2 niveaux
Copropriété Jamoigne Chiny
Copropriété Libramont
Création de 2 copropriétés à Libramont dans un immeuble de 4 étages et constitué de 7 appartements
Copropriété Libramont
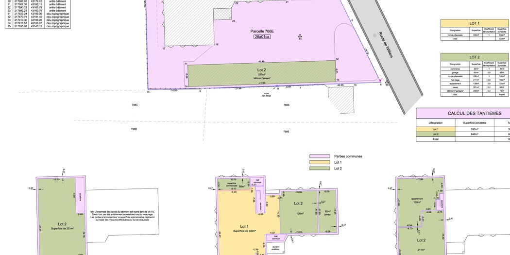
Copropriété Florenville
Définition d'une copropriété avec commerce et appartements à Florenville
Copropriété Florenville
Copropriété Florenville
Création de 2 lots et détermination des parties communes lors de la transformation d'un immeuble à Florenville
Copropriété Florenville