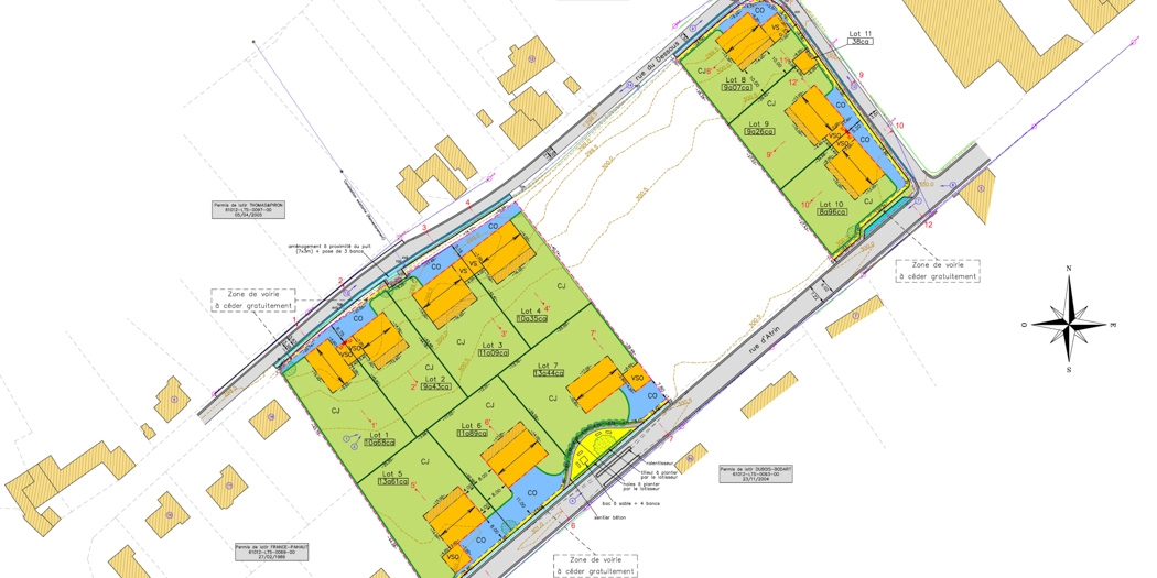
Réalisation d’un lotissement de 10 parcelles, rue d’Atrin à Clavier.
Etude du projet, coordination des travaux d’équipement et implantation des constructions.
Réalisation d’un lotissement de 10 parcelles, rue d’Atrin à Clavier.
Etude du projet, coordination des travaux d’équipement et implantation des constructions.