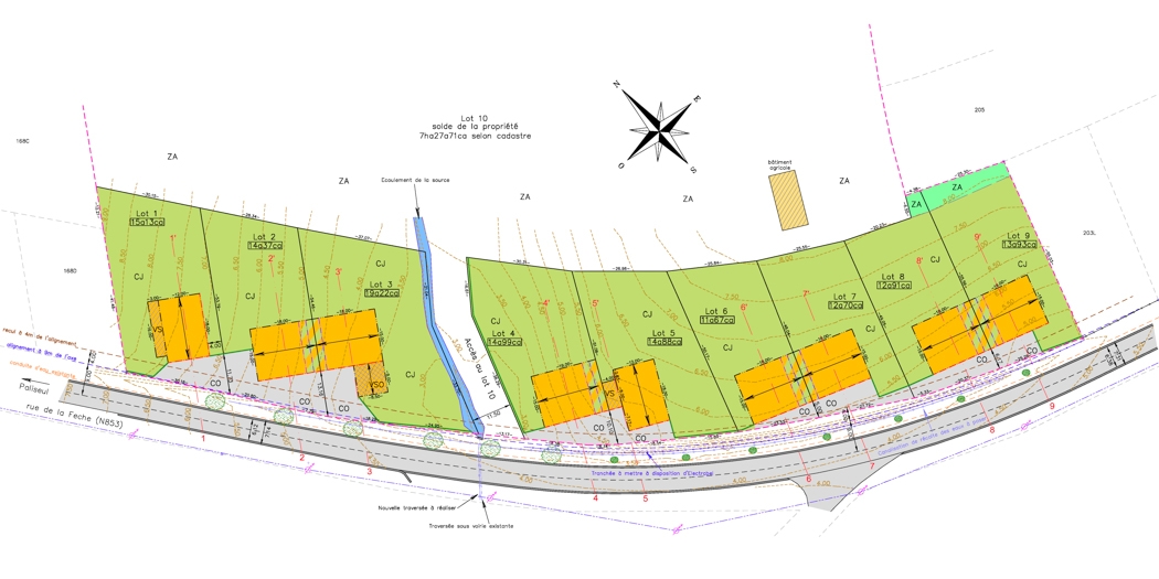
Lotissement à Bertrix – création d’un lotissement de 9 nouvelles habitations, rue de la Fèche à Bertrix
Autres dossiers de lotissement dans la commune: Bertrix (Jéhonville) / Bertrix (Auby)
Lotissement à Bertrix – création d’un lotissement de 9 nouvelles habitations, rue de la Fèche à Bertrix
Autres dossiers de lotissement dans la commune: Bertrix (Jéhonville) / Bertrix (Auby)