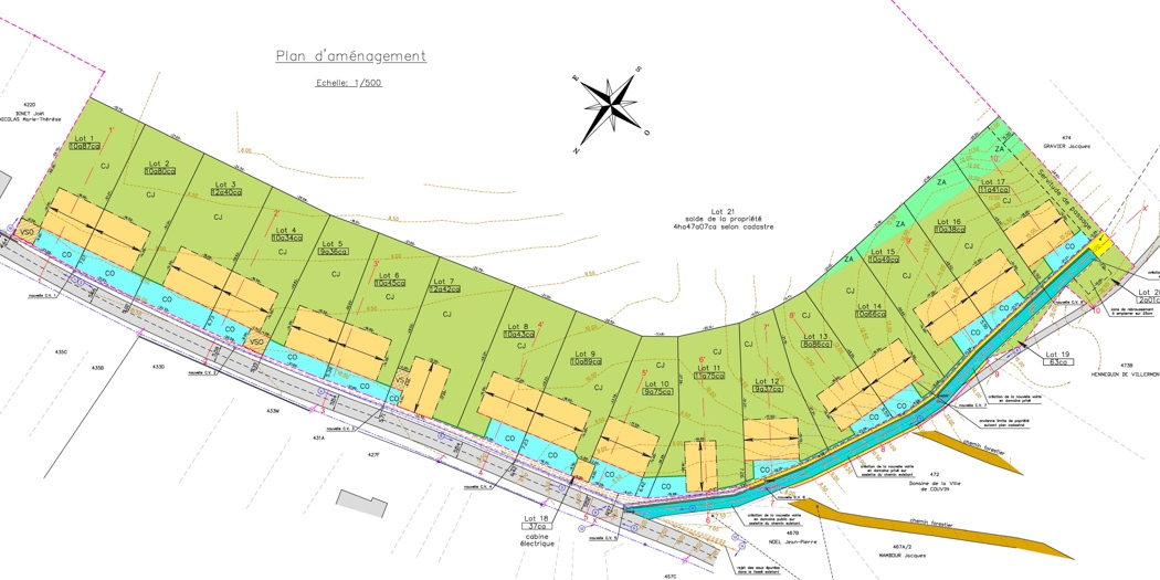
Etude d’un lotissement en vue de la réalisation de 17 nouvelles habitations, rue de l’Argoulet à Frasnes-lez-Couvin.
Suivi et coordination des travaux d’équipement.
Etude d’un lotissement en vue de la réalisation de 17 nouvelles habitations, rue de l’Argoulet à Frasnes-lez-Couvin.
Suivi et coordination des travaux d’équipement.