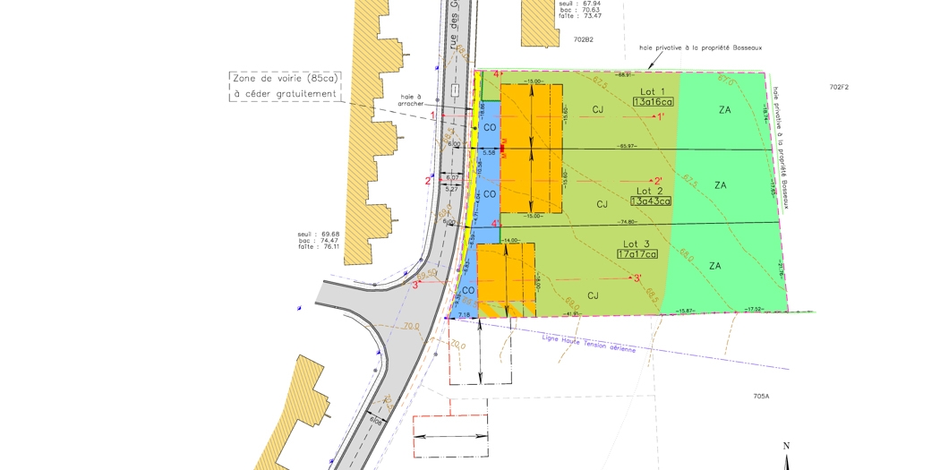
Lotissement à Wellin: réalisation de deux lotissements successifs de 6 et 3 parcelles, rue des Goulettes à Wellin.

Lotissement à Wellin Lotissement à Wellin
Lotissement à Wellin Lotissement à Wellin
Lotissement à Wellin Lotissement à Wellin
Lotissement à Wellin Lotissement à Wellin
Lotissement à Wellin Lotissement à Wellin
Lotissement à Wellin Lotissement à Wellin