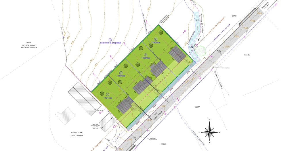
Vaux-sur-Sûre (Rosières) Etude d’un permis d’urbanisation en vue de la réalisation de 4 nouvelles habitations dans le village de Rosières.