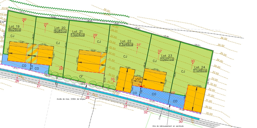
Lotissement à Saint-Hubert Vesqueville

Etude d’un lotissement en vue de la réalisation de 24 nouvelles habitations dans le village de Vesqueville.
Projet développé sur près de 600 mètres de voirie, en bordure d’un massif forestier.

Lotissement à Saint-Hubert Vesqueville Lotissement à Saint-Hubert Vesqueville
Lotissement à Saint-Hubert Vesqueville Lotissement à Saint-Hubert Vesqueville
Lotissement à Saint-Hubert Vesqueville Lotissement à Saint-Hubert Vesqueville
Lotissement à Saint-Hubert Vesqueville Lotissement à Saint-Hubert Vesqueville

Autres dossiers de lotissements dans la commune de Saint-Hubert: 6 habitations à Saint-Hubert / Saint-Hubert Avenue Paul Poncelet  /  7 habitations à Arville